Agencja Nieruchomości z Trójmiasta | Rok założenia 1997
Dom wolnostojący Suchy Dwór, ul. Makuszyńskiego
7 400 zł
Podstawowe informacje
Opis nieruchomości
Dom na wynajem – Suchy Dwór koło Gdyni | 5 pokoi | ogród | garaż | po odświeżeniu
Na wynajem oferujemy przestronny, funkcjonalny dom jednorodzinny po odświeżeniu, położony w Suchym Dworze, w spokojnej i zielonej okolicy, doskonale skomunikowanej z Trójmiastem (szybki dojazd do Gdyni i obwodnicy Trójmiasta).
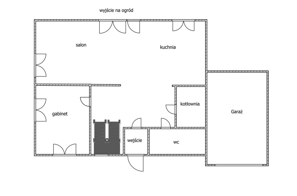
Układ pomieszczeń:
Parter:
-
duży, jasny salon z wyjściem na urządzony taras i ogród, kominek,
-
oddzielny aneks kuchenny w układzie otwartym w pełni urządzona i wyposażona,
-
gabinet/pokój do pracy,
-
toaleta dla gości,
-
garaż z kanałem oraz kotłownia z piecem gazowym.
Piętro:
-
trzy komfortowe sypialnie,
-
przestronny salon kąpielowy z wanną i prysznicem,
-
garderoba z miejscem na pralkę i suszarkę z bezpośrednim wejściem z łazienki,
-
dodatkowe pomieszczenie socjalne (np. pralnia, schowek lub pokój hobby).
Dodatkowe atuty:
-
urządzony ogród z automatycznym systemem podlewania i robotem koszącym,
-
automatyczna brama wjazdowa sterowana pilotem lub telefonem,
-
ogrzewanie gazowe – piec dwufunkcyjny z zasobnikiem wody,
-
ogrzewanie podłogowe: w salonie, kuchni i holu na parterze oraz w łazience na piętrze,
-
niskie koszty eksploatacji – zimą ok. 900 zł/miesiąc za gaz (utrzymanie temp. 23–25°C) + prąd i woda.
Lokalizacja:
Suchy Dwór to cicha, rodzinna okolica z szybkim dojazdem do Gdyni, Sopotu oraz obwodnicy Trójmiasta. W pobliżu znajdują się sklepy, szkoła, przedszkole, tereny rekreacyjne i ścieżki rowerowe.
W ogrodzie automatyczny system podlewania oraz robot koszący. Automatyczna brama na pilota z możliwością otwierania za pomocą telefonu. Opłaty za gaz zimą ok. 900zł miesięcznie (utrzymanie temp. 23-25st.). Do budynku doprowadzony światłowód.
Oferta dostępna od zaraz. Możliwość wynajęcia na min. 1 rok, kaucja 10tys zł. Umowa najem okazjonalny, możliwość wynajęcia na firmę (vat 23%).
Zapytaj o szczegóły
Informacje dodatkowe
brak danych
