Agencja Nieruchomości z Trójmiasta | Rok założenia 1997
Lokal biurowy Gdynia Grabówek, ul. Budowniczych
780 zł
Podstawowe informacje
Opis nieruchomości
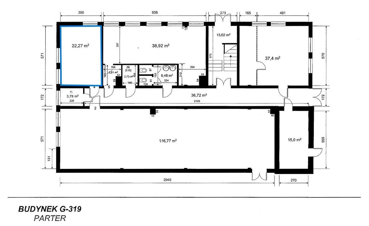
Oferujemy na wynajem lokal biurowy o powierzchni 22,27 m2, usytuowany na parterze budynku biurowego zlokalizowanego w Porcie Gdynia, przy ulicy Budowniczych.
Lokal składa się z jednego pomieszczenia o wymiarach 5,71m x 3,90m, z dostępem do dużej ilości światła słonecznego.
Przed przekazaniem lokalu najemcy pomieszczenie zostanie wysprzątane i odświeżone.
Toalety znajdują się w częściach wspólnych budynku na każdej z kondygnacji.
Istnieje dodatkowo możliwość najmu sąsiedniego pomieszczenia magazynowego.
Koszt wynajmu wynosi 780,00 zł (35 zł/m2) miesięcznie, dodatkowe opłaty eksploatacyjne 223,00 zł (10 zł/m2) + media według zużycia (płatne proporcjonalnie do zajmowanej powierzchni). Podane kwoty są kwotami netto, należy dodać do nich 23% podatku VAT. Wymagana jest kaucja w wysokości 3-miesięcznego czynszu.
Lokalizacja przy ulicy Budowniczych to idealne rozwiązanie dla firm związanych z transportem morskim oraz takich, których funkcjonowanie nie jest uzależnione od napływu klientów "z ulicy". Zapraszamy do kontaktu w celu umówienia się na prezentację!
Informacje dodatkowe
brak danych
