Agencja Nieruchomości z Trójmiasta | Rok założenia 1997
Lokal użytkowy Gdynia Grabówek, ul. Budowniczych
4 087 zł
Podstawowe informacje
Opis nieruchomości
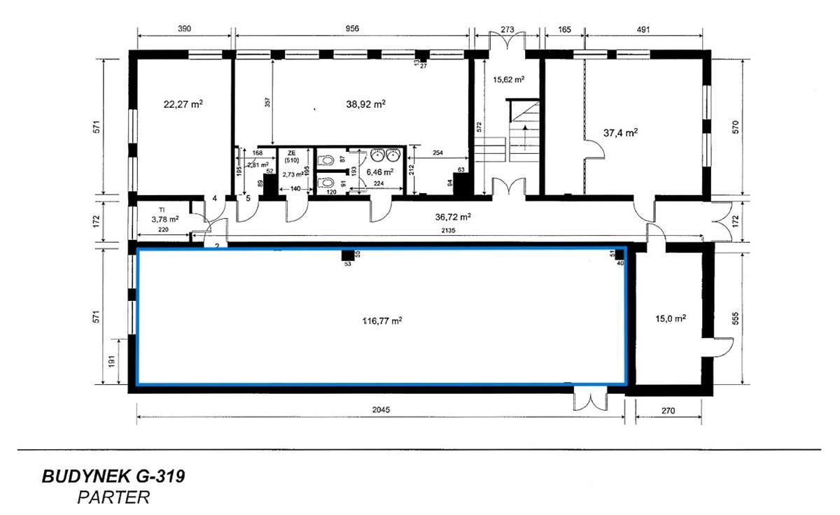
Oferujemy na wynajem lokal użytkowy/magazynowy o powierzchni 116,77 m2, usytuowany na parterze budynku biurowego zlokalizowanego w Porcie Gdynia, przy ulicy Budowniczych.
Lokal składa się z jednego długiego pomieszczenia, które bez problemu można podzielić zyskując zarówno pomieszczenie biurowe jak i magazynowe.
W lokalu znajduje się dodatkowe wyjście bezpośrednio na tył budynku, idealne do nieuciążliwych dostaw.
Przed przekazaniem lokalu najemcy pomieszczenie zostanie wysprzątane i odświeżone.
Toalety znajdują się w częściach wspólnych budynku na każdej z kondygnacji.
Istnieje dodatkowo możliwość najmu sąsiedniego pomieszczenia biurowego.
Koszt wynajmu wynosi 4 087,00 zł (35 zł/m2) miesięcznie, dodatkowe opłaty eksploatacyjne 1 168,00 zł (10 zł/m2) + media według zużycia (płatne proporcjonalnie do zajmowanej powierzchni). Podane kwoty są kwotami netto, należy dodać do nich 23% podatku VAT. Wymagana jest kaucja w wysokości 3-miesięcznego czynszu.
Lokalizacja przy ulicy Budowniczych to idealne rozwiązanie dla firm związanych z transportem morskim oraz takich, których funkcjonowanie nie jest uzależnione od napływu klientów "z ulicy". Zapraszamy do kontaktu w celu umówienia się na prezentację!
Informacje dodatkowe
brak danych
