Agencja Nieruchomości z Trójmiasta | Rok założenia 1997
Lokal użytkowy Gdynia Śródmieście, ul. Świętojańska
21 138 zł
Podstawowe informacje
Opis nieruchomości
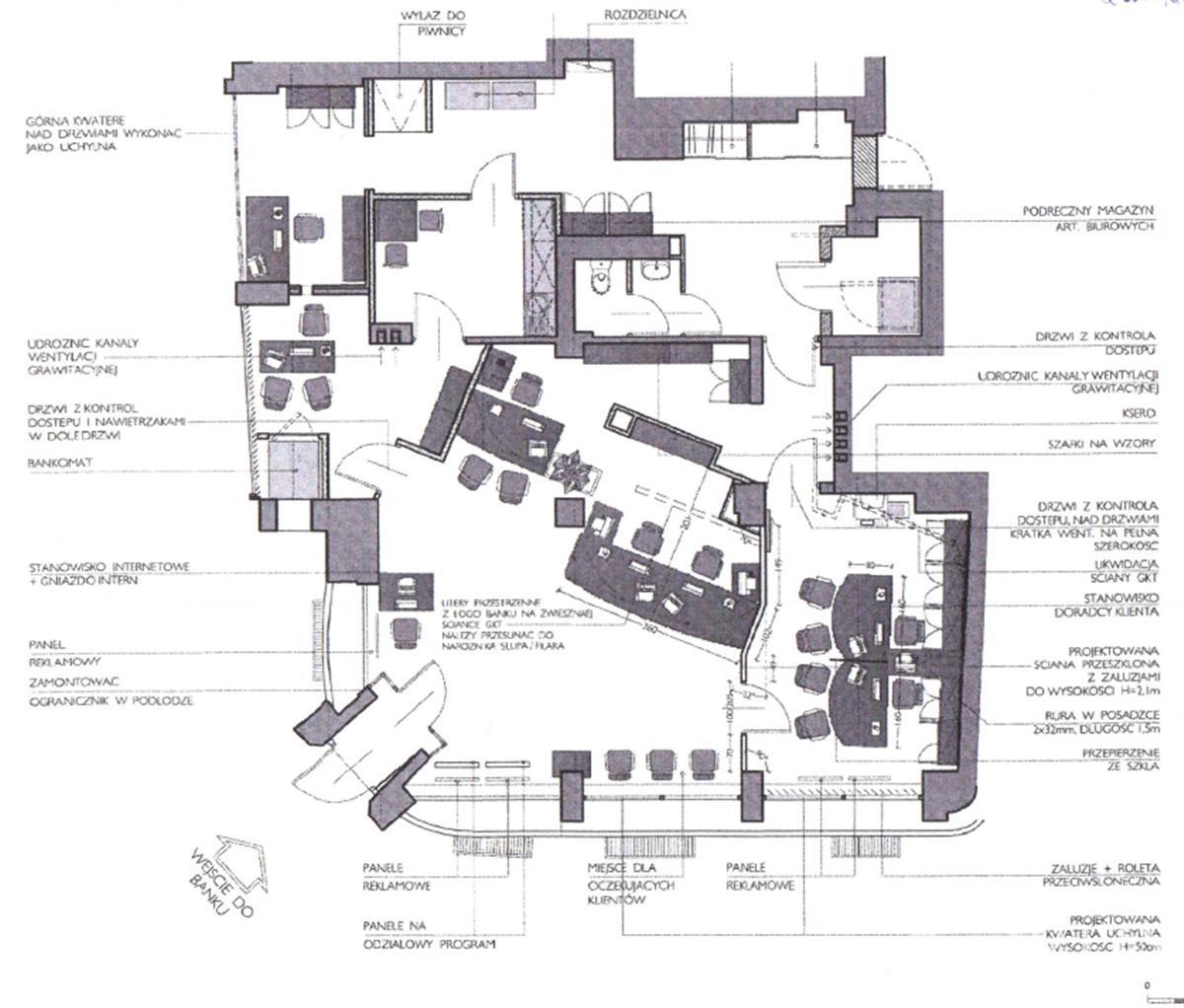
Do wynajęcia lokal handlowo - usługowy położony na parterze w samym centrum Gdyni, w górnej części jednej z najbardziej ruchliwych i prestiżowych ulic miasta - ul. Świętojańskiej.
W otoczeniu restauracji, eleganckich sklepów, czy lokali usługowych. Wspaniała lokalizacja - bardzo duży ruch pieszych. Kilkaset metrów do morza, teatru, kina.
Nieruchomość położona w zabytkowej, lecz bardzo zadbanej kamienicy. Łączna powierzchnia lokalu to 175,43 m2 na którą składa się : 128,28 m2 parteru (powierzchnia handlowa, biura, toalety) oraz 47,15 m2 piwnic.
Lokal narożny, wejście bezpośrednio z ulicy, miejsce na reklamę na elewacji budynku. Lokal wyposażony jest w system alarmowy oraz wentylację mechaniczną z klimatyzacją. Wysokość 3,15 m do sufitu podwieszanego, 3,80 m do stropu.
Opłaty eksploatacyjne i administracyjne (w tym woda i ogrzewanie) to ok 3450 zł.
Idealny pod każdy rodzaj działalności, również pod gastronomię. Drugie wyjście z tyłu budynku, co umożliwia dostawy i wyrzucanie śmieci przez klatkę schodową. Jest zgoda wspólnoty na sprzedaż alkoholu.
Podana cena najmu jest kwotą netto.
Niniejsze ogłoszenie służy wyłącznie celom informacyjnym i nie stanowi oferty handlowej w rozumieniu przepisów Kodeksu Cywilnego.
Zapytaj o szczegółyInformacje dodatkowe
brak danych
