Agencja Nieruchomości z Trójmiasta | Rok założenia 1997
Mieszkanie Rokitki, ul. Wiśniowa
483 000 zł
Podstawowe informacje
Opis nieruchomości
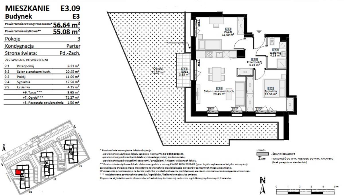
3-pokojowe mieszkanie 55,08 m2 | parter | ogródek 71,27 m2 | planowany odbiór II kw. 2027 | Rokitki
Na sprzedaż funkcjonalne mieszkanie 3-pokojowe o powierzchni 55,08 m2, zlokalizowane na parterze nowoczesnego budynku powstającego w miejscowości Rokitki, w bezpośrednim sąsiedztwie terenów zielonych i w odległości ok. 2 km od Tczewa.
Lokal zaprojektowany został z myślą o wygodzie codziennego użytkowania. Przemyślany układ pomieszczeń zapewnia komfort zarówno rodzinie, parze, jak i osobom poszukującym mieszkania z dostępem do prywatnej przestrzeni zewnętrznej.
Mieszkanie posiada południowo-zachodnią ekspozycję, zapewniającą doskonałe doświetlenie wnętrz od godzin południowych aż do wieczora. Taras i ogród stanowią idealną przestrzeń do relaksu w słońcu oraz spędzania czasu na świeżym powietrzu.
Do mieszkania przynależy:
- prywatny ogródek o powierzchni 71,27 m2
- taras o powierzchni 3,65 m2, stanowiący naturalne przedłużenie strefy dziennej
Etap inwestycji
Mieszkanie znajduje się w planowanej inwestycji, jednak sprzedaż lokali jest już prowadzona.
Planowany termin odbioru: II kwartał 2027 roku
Standard i udogodnienia
- nowoczesny budynek wyposażony w windę
- wózkarnia do dyspozycji mieszkańców
- naziemne miejsca parkingowe na terenie inwestycji
- możliwość zakupu komórki lokatorskiej oraz miejsca postojowego
- wysokość pomieszczeń: 2,65 m
- ogrzewanie gazowe z lokalnej kotłowni
Lokalizacja
Inwestycja realizowana jest w spokojnej, zielonej części Rokitek, w otoczeniu terenów rekreacyjnych, lasów, stawów i łąk, sprzyjających spacerom oraz aktywnemu wypoczynkowi.
Dodatkowym atutem jest bardzo dobra komunikacja:
- przystanek autobusowy w pobliżu inwestycji
- szybki dojazd do Tczewa (ok. 2 km)
- dojazd do Gdańska w około 30 minut
W najbliższej okolicy dostępna jest pełna infrastruktura: piekarnia, supermarket Biedronka, przedszkole, szkoła podstawowa, plac zabaw oraz przystanek autobusowy.
W ofercie dostępne są również inne mieszkania o różnych metrażach, układach oraz kondygnacjach – w tym lokale z balkonami oraz ogródkami. Szczegóły dostępne na zapytanie.
Opłaty
Planowana, orientacyjna wysokość miesięcznego czynszu administracyjnego, ustalana przez przyszłego zarządcę nieruchomości, wynosi:
- ok. 400 zł w okresie letnim
- ok. 550 zł w okresie zimowym
Podane wartości mają charakter szacunkowy i mogą ulec zmianie w zależności od zużycia mediów, decyzji wspólnoty oraz stawek dostawców.
Istnieje możliwość zakupu innych mieszkań o różnych metrażach i układach pomieszczeń – szczegóły dostępne na zapytanie.
Zapytaj o szczegółyNiniejsze ogłoszenie ma charakter informacyjny i nie stanowi oferty w rozumieniu art. 66 §1 Kodeksu cywilnego. Informacje zawarte w ogłoszeniu mają charakter orientacyjny i mogą ulec zmianie.
Informacje dodatkowe
brak danych
