Agencja Nieruchomości z Trójmiasta | Rok założenia 1997
Mieszkanie Rumia, ul. Błoń Janowskich
306 570 zł
Podstawowe informacje
Opis nieruchomości
Nowoczesne mieszkania w Rumi w otoczeniu zieleni
Kupujący nie płaci prowizji oraz podatku PCC.
Zalety:
- Mieszkanie w pełnym standardzie deweloperskim, słoneczne, usytuowane na III piętrze, z balkonem.
- Wysoka funkcjonalność części wspólnych, przestronne klatki schodowe utrzymane w przytulnej, stonowanej kolorystyce.
- Duża ilość miejsc postojowych w hali garażowej.
- Możliwość dokonania zmian aranżacyjnych.
- Nowoczesny design.
- Spokojna i cicha okolica.
- Prywatność i kameralny charakter Osiedla oraz bliska odległość od dynamicznej Gdyni i piaszczystych plaż w Mechelinkach, łączą doskonałą komunikację z idealnym miejscem do odpoczynku.
Lokalizacj:
Osiedle Janowo Park III w Rumi położone jest blisko Gdyni oraz 7 km od plaży w Mechelinkach. W sąsiedztwie znajdziemy liczne sklepy i aptekę (200 m), klub fitness (200 m), kościół (740 m), przychodnię (950 m), pocztę (650 m), kawiarnię (1 km). W niedalekiej odległości od Osiedla znajdują się również przedszkola - 400 m, szkoły - liceum 500 m, parki oraz plac zabaw. Doskonale skomunikowana okolica, przystanki autobusowe, do stacji SKM zaledwie 1,65 km, skąd bezpośrednio możemy dostać się do Gdyni, Sopotu, Gdańska oraz Redy i Wejherowa. Idealne miejsce dla osób ceniących sobie ciszę i komfort.
Budynek:
Osiedle Janowo Park III powstaje jako nowy rozdział i kontynuacja kameralnego Osiedla Janowo Park oraz nowoczesnego Osiedla Janowo Park II cenionego dewelopera Willbud. Nowoczesna inwestycja mieszcząca się w Rumi Janowo przy Parku „Błonia Janowskie”, położona blisko Gdyni. 4 kondygnacyjny budynek, wyposażony w nowoczesne cichobieżne windy oraz obszerną halę garażową, składa się z 120 stylowych, słonecznych mieszkań o powierzchniach 27 - 65 m2. Budynek został zaprojektowany z dbałością o szczegóły, w otoczeniu zieleni i kameralnej zabudowy, a duży wybór lokali sprawia, że każdy znajdzie mieszkanie idealnie dopasowane do swoich potrzeb.
Opis:
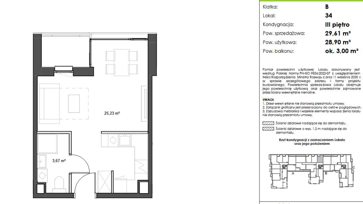
Mieszkanie o powierzchni użytkowej 28,90 m2 z balkonem 3,0 m2, mieści się na III piętrze, 3 piętrowego budynku wyposażonego w windę. Mieszkanie środkowe o zachodniej ekspozycji okien. Rzut mieszkania w załączeniu.
Miejsce postojowe w hali garażowej w cenie 26 999 zł.
Stan deweloperski. Ogrzewanie miejskie.
Odbiór II kwartał 2026 roku.
W ofercie posiadamy również inne mieszkania i apartamenty w tej inwestycji. Więcej informacji w biurze.
Orfin Nieruchomości - "Z nami dla Ciebie".
Serdecznie zapraszam na prezentację oraz zapoznanie się ze wszystkimi naszymi ofertami. W naszej bazie posiadamy również niepublikowane w Internecie propozycje z rynku Off Market.
Natalia Sikora-Piernicka, Tel.: 572 200 541 , E-mail: natalia@orfin.net.pl
W razie jakichkolwiek pytań proszę o kontakt telefoniczny lub e-mailowy.
Dla naszych klientów świadczymy usługi pośrednictwa kredytowego.
Niniejsze ogłoszenie nie stanowi oferty handlowej w rozumieniu Kodeksu Cywilnego.
Informacje dodatkowe
brak danych
